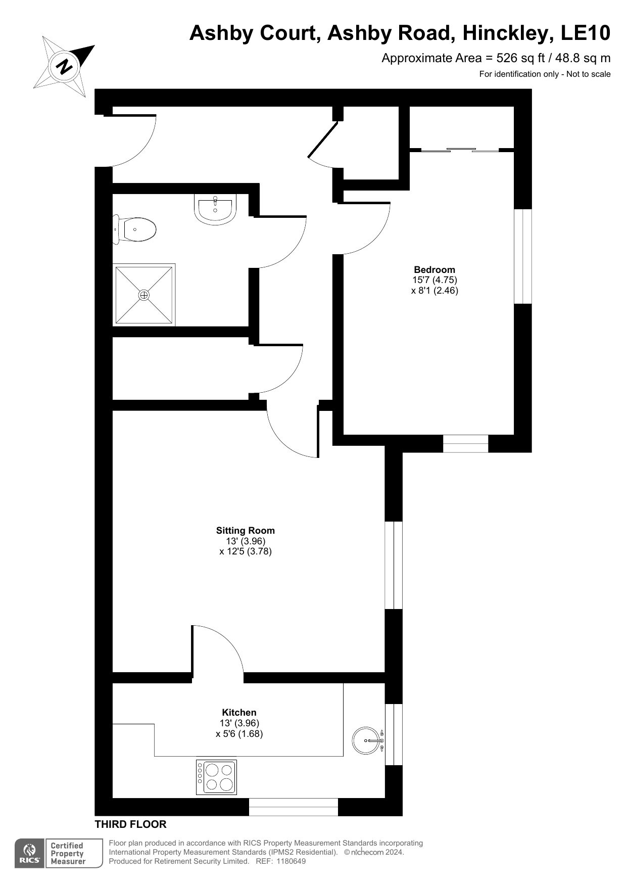
Ashby Court Flat 47, Ashby Road, Hinckley
A one bedroom third floor corner retirement apartment set within Retirement Security's Ashby Court, Hinckley, LE10, which is located less than half a mile from the local Asda and has excellent transport links into Leicester and the surrounding towns.
Property Highlights
- One Bedroom Third Floor Apartment
- Master Bedroom with Built in Wardrobe
- Modern Fitted Kitchen with Breakfast Bar
- Walk in Wet Room with Level Access Shower
- Owners Lounge, Dining Area and Guest Suite
- Residents' Parking
- 24 Hour On-Site Staff
- Weekly 1.5 Hours Clean
- Active Social Community
- Move in with lunch free for seven days, help from our on-site handyman and additional support from our in-house team
Property Description
A one bedroom, third floor retirement apartment set within Retirement Security's Ashby Court, Hinckley, LE10, which is located less than half a mile from the local Asda and has excellent transport links into Leicester and the surrounding towns. The accommodation comprises entrance hall with large storage cupboard and further storage cupboard, living room with feature fireplace, modern kitchen with built in oven and hob, freestanding washing machine and useful breakfast bar, master bedroom with built-in wardrobe plus a wet room with level access shower.
Ashby Court is run by Owners, for Owners, and comprises fifty apartments. Amenities include owners' lounge, on-site dining, guest suite, landscaped gardens and owners' parking. The Court is situated under one mile from Hinckley town, where every facility can be found, including a Green Flag park. There is a small shop and post box opposite the Court, a supermarket just over half a mile away and two bus routes passing the Court serving Leicester, Hinckley, Nuneaton and Coventry. The Court provides a number of regular weekly activities and outside trips are also organised for the homeowners from time to time.
Within the UK, Retirement Security was one of the first to establish Independent Retirement Communities and, since its inception in 1983, has continued to be a trail blazer for nearly 40 years.
The company was established to offer affordable homes within a happy and secure environment carefully designed for ease of access, in which owners could enjoy their retirement and thrive in an active supportive community, but where they could also protect and keep control of their hard-earned finances through running their own communities - Communities for owners run by owners. That remains true today in each of Retirement Security's 32 courts across England and Wales.
It is important to note that a significant proportion of the Service Charge relates to items which the prospective purchaser is responsible for in their present home, such as building insurance, building maintenance, gardening, and domestic help.
The lease provides that a transfer premium is payable to Retirement Security on resale of a property. The maximum premium payable is 3% of the sale price depending on the length of time an Owner has lived at the property. Further information is available from the Court Manager.


























