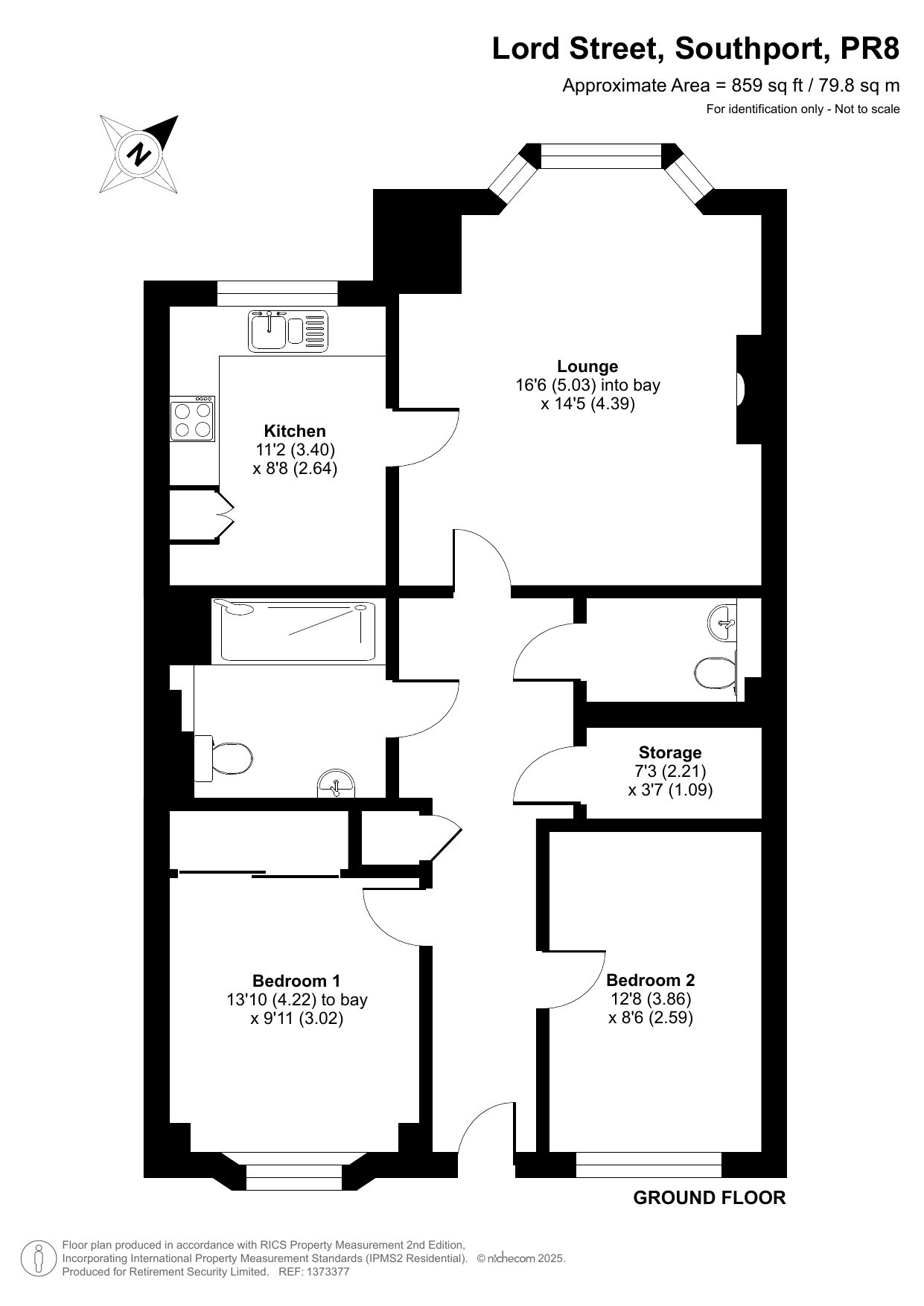
Forum Court Apartment 2, 80, Lord Street, Southport
A well presented two bedroom, ground floor retirement apartment overlooking Lord Street set within Retirement Security's Forum Court in Southport, PR8 which offers independent living for the over 60's.
Property Highlights
- Ground Floor Apartment
- Overlooking Lord Street & Communal Gardens
- Redecorated & new Carpets throughout
- Newly Fitted Kitchen
- Active Social Community
- Communities for owners, run by owners
- Lift Access
- 24 Hour On-Site Staff
- Owners' Lounge, Dining Area and Guest Suite
Property Description
A well presented two bedroom, ground floor retirement apartment overlooking Lord Street set within Retirement Security's Forum Court in Southport, PR8 which offers independent living for the over 60's. This newly decorated and carpeted north-west facing property also looks out onto the communal gardens. Comprising an entrance hall with storage, newly fitted kitchen, living room, master bedroom, second bedroom, bathroom with walk-in level access shower and a separate WC/ Cloakroom.
With a lively and energetic seaside appeal, Forum Court is located on Lord Street, a Victorian canopied boulevard edged in scenic gardens with an Owners conservatory overlooking the bustling character. This retirement property of 59 apartments is set in the charming town of Southport, offering luxury independent living and a thriving atmosphere. Relax in your personal Owners lounge, a comfortable and spacious social hub where the popular coffee mornings and afternoon teas are held. Experience the perks of higher-quality services in the Owners dining room, with daily meals being prepared in-house and served fresh to your table! The hobbies room is a cozy spot where Owners can practice their skills and have friendly competition over a variety of crafts and games. 24-hour staff are a comforting and trustworthy team who are always on site and available to help you, bringing peace-of-mind and reassurance. This thoughtfully designed retirement property is looked after by a dedicated team of housekeeping assistants, who are responsible for all communal areas as well as the weekly cleaning of your home. Experience this lifestyle and more, all from the comfort of your own home.
Forum Court is the perfect balance of an upscale lifestyle with premium services and empowering independent living, all set within a vibrant, dynamic hot spot. Keep control of your future and begin a new chapter in a community run by Owners, for Owners.
Providing a unique approach to independent retirement living, Retirement Security was established in 1983. We have continued to trail blaze for over 40 years with 32 Courts across England and Wales all offering a range of high-level services to make life easier.
Our founder, Bob Bessell, committed to provide retirees with a wider selection of retirement options, ones that offered affordability, a secure environment and a supportive community, alongside retaining financial control – Courts ‘Run by Owners, for Owners’. These carefully designed properties bridge the gap between luxury retirement living and preserving your independence for as long as possible.
It is important to note that a significant proportion of the Service Charge relates to items which the prospective purchaser is responsible for in their present home, such as building insurance, building maintenance, gardening, and domestic help.
The lease provides that a transfer premium is payable to Retirement Security on resale of a property. The maximum premium payable is 3% of the sale price depending on the length of time an Owner has lived at the property. Further information is available from the Court Manager














































