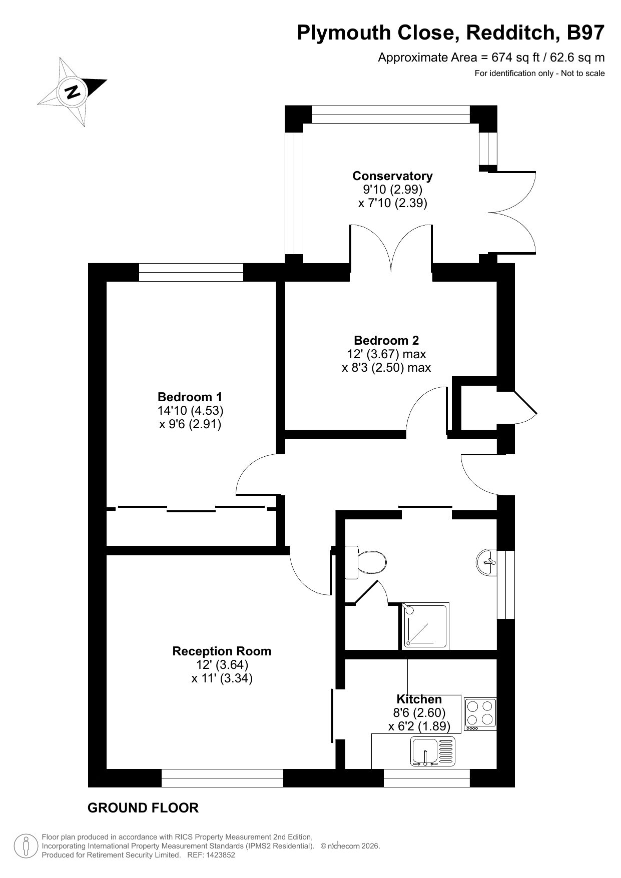
38 Plymouth Court, Plymouth Close, Redditch
A two bedroom bungalow located within Retirement Security's Plymouth Court, Redditch, B97, which offers independent living for the over 55's.
Property Highlights
- Two Bedroom Bungalow
- Conservatory Leading to Mature Private Rear Garden
- Master Bedroom with built-in wardrobes
- Wet Room with Level Access Walk-in Shower
- Communities for owners, run by owners
- Active Social Community
- 24 Hour On-Site Staff
- Owners' Lounge, Dining Area and Guest Suite
- Lift Access
Property Description
A two bedroom bungalow located within Retirement Security's Plymouth Court, Redditch, B97, which offers independent living for the over 55's. Approached via a pathway the property offers access to a useful outdoor store. Comprising an entrance hall, light and bright living / dining room, fitted kitchen with convenient breakfast bar, wet room with walk-in level access shower, master bedroom with built in mirrored door wardrobe, second bedroom with French doors to a conservatory which provides external access to the rear garden. The mature, well stocked rear garden is mainly laid to lawn.
Nestled in the heart of Redditch, Plymouth Court offers a vibrant and supportive retirement setting with 52 well-maintained bungalows, set within beautifully landscaped gardens. Our Owners enjoy an independent lifestyle with the added comfort of thoughtful services and a warm, welcoming community. Daily meals are freshly prepared and served in the communal Dining Room, and Owners can relax or socialise in the bright and comfortable Lounge. You could even tuck yourself away in the library and lose yourself in your favourite novel. Each bungalow receives a weekly service clean from our dedicated housekeeping team, ensuring peace of mind and a pleasant, well-kept home environment. The grounds are lovingly maintained by our gardener and handyman, creating an attractive and tranquil place to enjoy outdoor spaces year-round.
Plymouth Court is owned and managed by those who truly care about the wellbeing and satisfaction of the Owners who live here – you! While we are not a care setting, we provide round-the-clock support through our 24-hour Duty Manager team, along with emergency alarms and cords in each bungalow for added security. A rich programme of social activities is available, from bingo and coffee mornings to days out and special events celebrating Owners’ lives.
Providing a unique approach to independent retirement living, Retirement Security was established in 1983. We have continued to trail blaze for over 40 years with 32 Courts across England and Wales all offering a range of high-level services to make life easier.
Our founder, Bob Bessell, committed to provide retirees with a wider selection of retirement options, ones that offered affordability, a secure environment and a supportive community, alongside retaining financial control – Courts ‘Run by Owners, for Owners’. These carefully designed properties bridge the gap between luxury retirement living and preserving your independence for as long as possible.
It is important to note that a significant proportion of the Service Charge relates to items which the prospective purchaser is responsible for in their present home, such as building insurance, building maintenance, gardening, and domestic help.
The lease provides that a transfer premium is payable to Retirement Security on resale of a property. The maximum premium payable is 3% of the sale price depending on the length of time an Owner has lived at the property. Further information is available from the Court Manager.
















































